| Հասանելիության կարգավիճակ: | |
|---|---|
| Քանակը: | |
18-Ուղևորատարողություն
Հարմարավետորեն տեղափոխում է մինչև 18 անձնակազմ մեկ ուղևորության ընթացքում, որն իդեալական է ստորգետնյա անձնակազմի արդյունավետ տեղաշարժի համար:
Պրեմիում միջազգային բաղադրիչներ
Կառուցված է համաշխարհային մասշտաբով վստահելի, բարձրորակ մասերով՝ բարձր հուսալիության և երկար սպասարկման համար:
Կենտրոնական հոդակապ շասսի + Ամբողջական հիդրավլիկ ղեկ
Բացառիկ ճկունություն և ամուր շրջադարձային շառավիղ, որը կատարյալ է նեղ և բարդ հանքային թունելներով նավարկելու համար:
Բարձր անվտանգության արգելակման համակարգ
Ամբողջովին փակ բազմասկավառակ թաց արգելակներ SAHR (Spring Applied Hydraulic Release) անսարքությունից անվտանգ դիզայնով՝ հուսալի կանգառի հզորության համար:
Հզոր և ցածր արտանետումների շարժիչ
Cummins տուրբո լիցքավորվող դիզելային շարժիչը, որը համապատասխանում է Չինաստանի IV փուլի արտանետումների ստանդարտներին. ուժեղ կատարողականություն՝ շրջակա միջավայրի վրա ազդեցության նվազեցմամբ:
FOPS/ROPS սերտիֆիկացված տնակ
Ամուր պաշտպանիչ կառուցվածքը ապահովում է առավելագույն անվտանգություն վարորդի և ուղևորների համար:
Խելացի բազմաֆունկցիոնալ էկրան
Մեքենայի կարգավիճակի իրական ժամանակի մոնիտորինգ՝ ներկառուցված ախտորոշիչ աջակցությամբ՝ արագ անսարքությունների վերացման համար:
Ունիվերսալ արագ կցվող շասսի համակարգ
Մեկ մեքենա, անսահման հնարավորություններ — աջակցում է անձնակազմի փոխադրման, բեռների, սպասարկման և այլ մասնագիտացված կցորդների արագ անցմանը:
5-րոպեանոց կցորդի արագ փոփոխություն
Արդյունաբերության առաջատար արագ փոփոխման համակարգը թույլ է տալիս գործիքների/կցորդների ամբողջական փոխանակում ընդամենը 5 րոպեում՝ նվազագույնի հասցնելով անգործության ժամանակը:
| Կարգավիճակ | Հստակեցում |
|---|---|
| Կատարում | Փոխադրող հզորությունը՝ 18 մարդ Բեռնատարողությունը՝ 1800 կգ Գործող քաշը՝ 12800 կգ Մաքս. ձգողական ուժ՝ 110 կՆ |
| Արագություն (մակարդակ, լրիվ բեռնվածություն) | 1-ին փոխանցում՝ 5 ±1 կմ/ժ 2-րդ փոխանցում՝ 12 ±1 կմ/ժ 3-րդ փոխանցում՝ 24 ±1 կմ/ժ |
| Էներգահամակարգ | Շարժիչ՝ Cummins B5.9CS4 EFI, ջրով սառեցված, Tier 4 / Euro Stage IV 129 կՎտ @ 2200 rpm, ոլորող մոմենտ՝ 760 kN @ 1600 rpm Արտանետման համակարգ՝ DOC կատալիտիկ մաքրիչ և խլացուցիչ Վառելիքի բաքի լիցքավորման հզորությունը՝ 140 լ Էլեկտրական փոխանցման հսկողություն |
| Հիդրավլիկ համակարգ | Լիովին հիդրավլիկ շարժիչով ղեկ Լիցքավորման փական և սպասարկման արգելակային փական՝ MICO Արգելակման կուտակիչ՝ Leemin Հիդրավլիկ յուղի բաք՝ 200 լ (յուղի վերադարձի ֆիլտրով) ՍԱՀՐ Հետևի առանցքը ամրացված է, առջևի առանցքը տատանվում է ±7° Անվադողերի չափսը՝ 12.00 – 20 PR20 |
| Տնակ | FOPS/ROPS սերտիֆիկացում Սառը օդորակիչ Երկու դուռ Երեք կետ կոնտակտային մուտքի համակարգ Ցածր հաճախականության կախովի նստատեղ Ավտոմեքենայի պահուստային տեսախցիկ Առաջ վարում Երկու տեղանոց խցիկ Առջևի ապակու մաքրիչ սրահից դուրս |
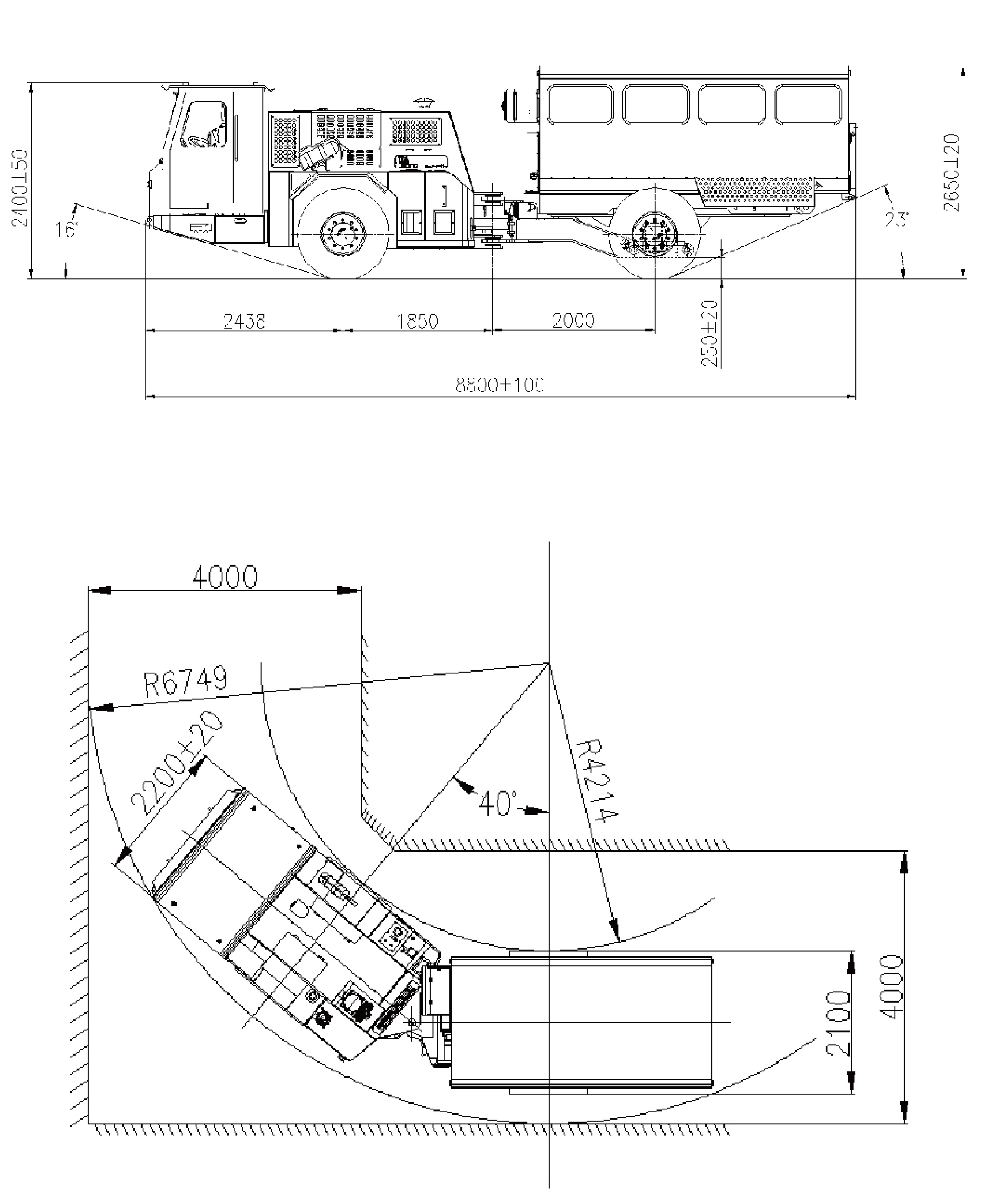
| Dimensions | Երկարությունը՝ 8800 ±100 մ մԼայնությունը՝ 2200 ±20 մմ Բարձրությունը՝ 2650 ±20 մմ Գետնից մաքրություն՝ 250 ± 20 մմ Ղեկի անկյունը՝ ±40° Ներքին շրջադարձի շառավիղը՝ 4214 ±100 մմ Արտաքին շրջադարձի շառավիղը՝ 6749 ±100 մմ |
| Էլեկտրական համակարգ | Էլեկտրական ռելե և անջատիչ՝ Schneider Վերահսկիչ՝ Ֆինլանդիա EPEC Շարժիչի անսարքության հայտնաբերում Մարտկոց՝ 2*12 V Camel |
| Անվտանգություն | Արտակարգ կանգառի կոճակ անձնակազմի խցիկում Թարթող փարոս Դյուրակիր հակահրդեհային պաշտպանություն 1*6 կգ |
| Ընտրանքներ / Աքսեսուարներ | Փակ կուպե 16 անձի համար՝ վառելիքի օդատաքացուցիչով Փակ կուպե 16 անձի համար՝ օդորակիչով Սալոնի և անձնակազմի խցիկի միջև կապի համակարգ Հրդեհային պաշտպանության ավտոմատ համակարգ |


18-Ուղևորատարողություն
Հարմարավետորեն տեղափոխում է մինչև 18 անձնակազմ մեկ ուղևորության ընթացքում, որն իդեալական է ստորգետնյա անձնակազմի արդյունավետ տեղաշարժի համար:
Պրեմիում միջազգային բաղադրիչներ
Կառուցված է համաշխարհային մասշտաբով վստահելի, բարձրորակ մասերով՝ բարձր հուսալիության և երկար սպասարկման համար:
Կենտրոնական հոդակապ շասսի + Ամբողջական հիդրավլիկ ղեկ
Բացառիկ ճկունություն և ամուր շրջադարձային շառավիղ, որը կատարյալ է նեղ և բարդ հանքային թունելներով նավարկելու համար:
Բարձր անվտանգության արգելակման համակարգ
Ամբողջովին փակ բազմասկավառակ թաց արգելակներ SAHR (Spring Applied Hydraulic Release) անսարքությունից անվտանգ դիզայնով՝ հուսալի կանգառի հզորության համար:
Հզոր և ցածր արտանետումների շարժիչ
Cummins տուրբո լիցքավորվող դիզելային շարժիչը, որը համապատասխանում է Չինաստանի IV փուլի արտանետումների ստանդարտներին. ուժեղ կատարողականություն՝ շրջակա միջավայրի վրա ազդեցության նվազեցմամբ:
FOPS/ROPS սերտիֆիկացված տնակ
Ամուր պաշտպանիչ կառուցվածքը ապահովում է առավելագույն անվտանգություն վարորդի և ուղևորների համար:
Խելացի բազմաֆունկցիոնալ էկրան
Մեքենայի կարգավիճակի իրական ժամանակի մոնիտորինգ՝ ներկառուցված ախտորոշիչ աջակցությամբ՝ արագ անսարքությունների վերացման համար:
Ունիվերսալ արագ կցվող շասսի համակարգ
Մեկ մեքենա, անսահման հնարավորություններ — աջակցում է անձնակազմի փոխադրման, բեռների, սպասարկման և այլ մասնագիտացված կցորդների արագ անցմանը:
5-րոպեանոց կցորդի արագ փոփոխություն
Արդյունաբերության առաջատար արագ փոփոխման համակարգը թույլ է տալիս գործիքների/կցորդների ամբողջական փոխանակում ընդամենը 5 րոպեում՝ նվազագույնի հասցնելով անգործության ժամանակը:
| Կարգավիճակ | Հստակեցում |
|---|---|
| Կատարում | Փոխադրող հզորությունը՝ 18 մարդ Բեռնատարողությունը՝ 1800 կգ Գործող քաշը՝ 12800 կգ Մաքս. ձգողական ուժ՝ 110 կՆ |
| Արագություն (մակարդակ, լրիվ բեռնվածություն) | 1-ին փոխանցում՝ 5 ±1 կմ/ժ 2-րդ փոխանցում՝ 12 ±1 կմ/ժ 3-րդ փոխանցում՝ 24 ±1 կմ/ժ |
| Էներգահամակարգ | Շարժիչ՝ Cummins B5.9CS4 EFI, ջրով սառեցված, Tier 4 / Euro Stage IV 129 կՎտ @ 2200 rpm, ոլորող մոմենտ՝ 760 kN @ 1600 rpm Արտանետման համակարգ՝ DOC կատալիտիկ մաքրիչ և խլացուցիչ Վառելիքի բաքի լիցքավորման հզորությունը՝ 140 լ Էլեկտրական փոխանցման հսկողություն |
| Հիդրավլիկ համակարգ | Լիովին հիդրավլիկ շարժիչով ղեկ Լիցքավորման փական և սպասարկման արգելակային փական՝ MICO Արգելակման կուտակիչ՝ Leemin Հիդրավլիկ յուղի բաք՝ 200 լ (յուղի վերադարձի ֆիլտրով) ՍԱՀՐ Հետևի առանցքը ամրացված է, առջևի առանցքը տատանվում է ±7° Անվադողերի չափսը՝ 12.00 – 20 PR20 |
| Տնակ | FOPS/ROPS սերտիֆիկացում Սառը օդորակիչ Երկու դուռ Երեք կետ կոնտակտային մուտքի համակարգ Ցածր հաճախականության կախովի նստատեղ Ավտոմեքենայի պահուստային տեսախցիկ Առաջ վարում Երկու տեղանոց խցիկ Առջևի ապակու մաքրիչ սրահից դուրս |
| Dimensions | Երկարությունը՝ 8800 ±100 մ մԼայնությունը՝ 2200 ±20 մմ Բարձրությունը՝ 2650 ±20 մմ Գետնից մաքրություն՝ 250 ± 20 մմ Ղեկի անկյունը՝ ±40° Ներքին շրջադարձի շառավիղը՝ 4214 ±100 մմ Արտաքին շրջադարձի շառավիղը՝ 6749 ±100 մմ |
| Էլեկտրական համակարգ | Էլեկտրական ռելե և անջատիչ՝ Schneider Վերահսկիչ՝ Ֆինլանդիա EPEC Շարժիչի անսարքության հայտնաբերում Մարտկոց՝ 2*12 V Camel |
| Անվտանգություն | Արտակարգ կանգառի կոճակ անձնակազմի խցիկում Թարթող փարոս Դյուրակիր հակահրդեհային պաշտպանություն 1*6 կգ |
| Ընտրանքներ / Աքսեսուարներ | Փակ կուպե 16 անձի համար՝ վառելիքի օդատաքացուցիչով Փակ կուպե 16 անձի համար՝ օդորակիչով Սալոնի և անձնակազմի խցիկի միջև կապի համակարգ Հրդեհային պաշտպանության ավտոմատ համակարգ |


FAMBITION-ը, որը գտնվում է Ցինդաո քաղաքի Laixi տնտեսական զարգացման գոտում, հայտնի և մասնագիտացված հանքարդյունաբերական սարքավորումներ արտադրող է:
Հեղինակային իրավունք © 2024 QINGDAO FAMBITION HEAVY MACHINERY CO.,LTD: Բոլոր իրավունքները պաշտպանված են: | Sitemap | Գաղտնիության քաղաքականություն