| Հասանելիության կարգավիճակ: | |
|---|---|
| Քանակը: | |
FUE05-ը 5 տոննա առավելագույն բեռնատարողունակությամբ պայթուցիկ տրանսպորտային միջոց է առանց հետքերով: Մեքենան ընդունում է պրեմիում միջազգային բաղադրիչներ, կենտրոնական հոդակապ շասսի և ամբողջական հիդրավլիկ ղեկային համակարգ: Հագեցված է SAHR-ով աշխատող ամբողջովին փակ բազմասկավառակ թաց արգելակներով, մեքենան աշխատում է Cummins ցածր արտանետումների տուրբոշարժիչով, որը համապատասխանում է China IV արտանետումների ստանդարտներին: FOPS/ROPS սերտիֆիկացված խցիկը ինտեգրված է բազմաֆունկցիոնալ էկրանին իրական ժամանակում սարքավորումների մոնիտորինգի և անսարքությունների վերացման համար:
Արագ ամրացվող շասսիի ունիվերսալ համակարգը թույլ է տալիս արագ փոփոխություններ կատարել՝ աջակցելով բազմաթիվ ֆունկցիոնալ կցորդներին՝ բազմազան գործողությունների համար: Արագ փոփոխվող մեխանիզմը թույլ է տալիս գործիքը փոխարինել հինգ րոպեի ընթացքում:
| Կարգավիճակ | Մանրամասներ |
|---|---|
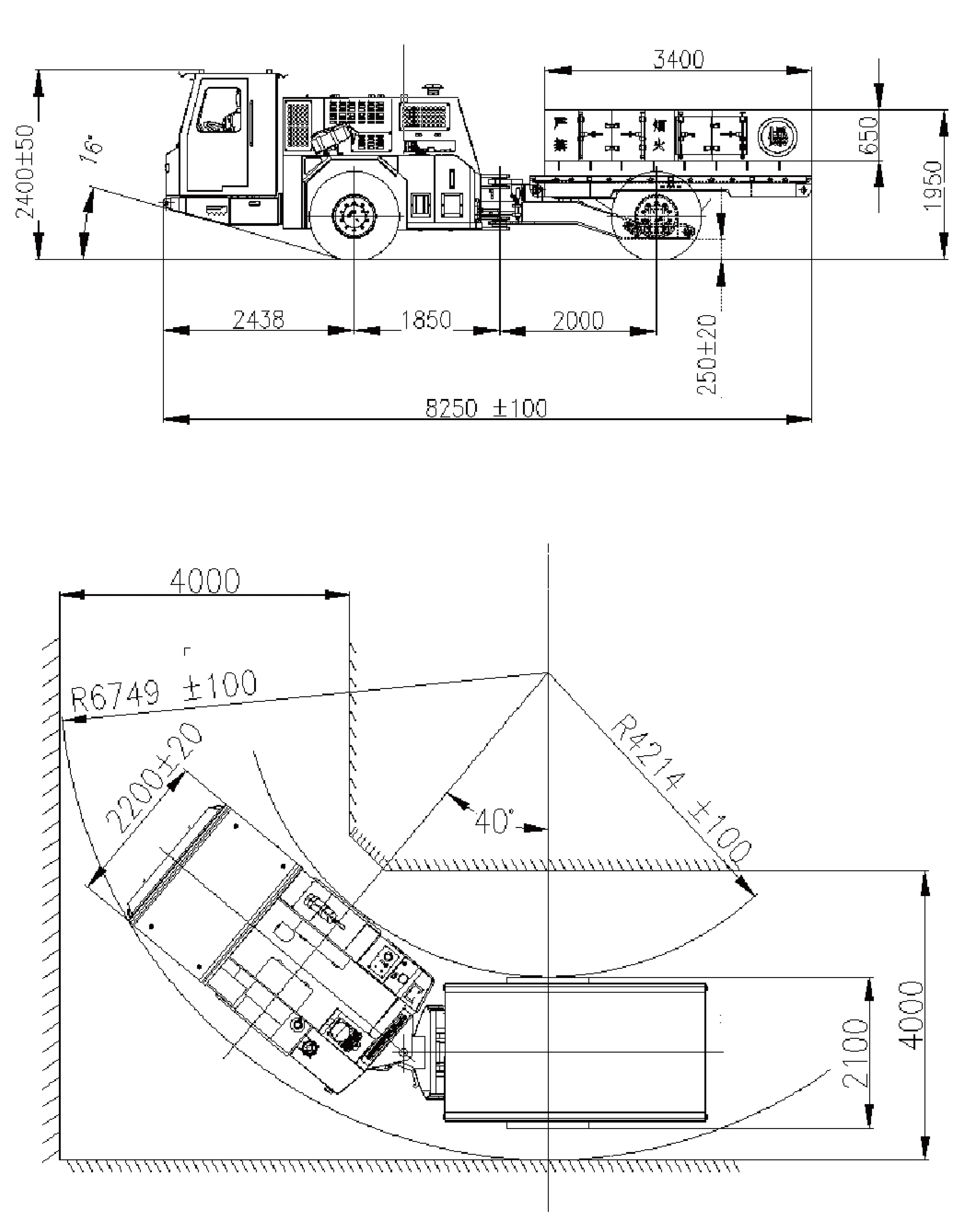
| Կատարում | Բեռնատարողությունը՝ 5000 կգ Խցիկի չափսը՝ 3200 × 5500 × 1800 մմ Կուպե դռան լայնությունը՝ 1700 մմ Կուպե դռան համարը՝ 5 հատ Առավելագույն ձգողական ուժ՝ 110 կՆ |
| Չափս | Երկարությունը՝ 8250 ± 100 մ մԼայնությունը՝ 2200 ± 20 մմ Բարձրությունը՝ 2400 ± 50 մմ Գետնից մաքրություն՝ 250 ± 20 մմ Ղեկի անկյունը՝ ±40° Ներքին շրջադարձի շառավիղը՝ 4214 ± 100 մմ Արտաքին շրջադարձի շառավիղը՝ 6749 ± 100 մմ |
| Արագություն (մակարդակ, լրիվ բեռ) | 1-ին փոխանցում՝ 5 ± 1 կմ/ h2-րդ փոխանցում՝ 12 ± 1 կմ/ժ 3-րդ փոխանցում՝ 24 ± 1 կմ/ժ |
| Էներգահամակարգ | Շարժիչ՝ Cummins B5.9CS 4EFI, ջրով սառեցված, Tier 4, Euro Stage IV 129 կՎտ @ 2200 rpm, 760 N·m @ 1600 rpm |
| Արտանետման համակարգ | DOC կատալիտիկ մաքրիչ և խլացուցիչ |
| Վառելիքի տանկի հզորությունը | 140 Լ |
| Հիդրավլիկ համակարգ | Լիովին հիդրավլիկ շարժիչով ղեկ Լիցքավորման փական և սպասարկման արգելակային փական՝ MICO Արգելակային կուտակիչ՝ Leemin (Յուղի վերադարձի ֆիլտր) Հիդրավլիկ յուղի բաք՝ 200 լ |
| Էլեկտրական համակարգ | Էլեկտրական ռելե և անջատիչ՝ Schneide rController՝ Ֆինլանդիա EPEC Շարժիչի անսարքության հայտնաբերում |
| Տնակ (փակ) | FOPS/ROPS սերտիֆիկացում Սառը օդորակիչ Երկու դուռ տնակում Առաջ վարում Երեք կետանոց կոնտակտային մուտքի համակարգ՝ սրահ արագ մուտք գործելու համար Ցածր հաճախականության կախովի նստատեղ Ավտոմեքենայի պահուստային տեսախցիկ Երկու տեղանոց խցիկ Առջևի ապակու մաքրիչ սրահից դուրս |
| Անվտանգություն | Ջրամեկուսացման փարոս Դյուրակիր հակահրդեհային պաշտպանություն 1 × 6 կգ Ծխի ազդանշան Օդափոխման համակարգ |
| Ընտրանքներ | Հրդեհային պաշտպանության ավտոմատ համակարգ mAutomatic կենտրոնացված քսում |


FUE05-ը 5 տոննա առավելագույն բեռնատարողունակությամբ պայթուցիկ տրանսպորտային միջոց է առանց հետքերով: Մեքենան ընդունում է պրեմիում միջազգային բաղադրիչներ, կենտրոնական հոդակապ շասսի և ամբողջական հիդրավլիկ ղեկային համակարգ: Հագեցված է SAHR-ով աշխատող ամբողջովին փակ բազմասկավառակ թաց արգելակներով, մեքենան աշխատում է Cummins ցածր արտանետումների տուրբոշարժիչով, որը համապատասխանում է China IV արտանետումների ստանդարտներին: FOPS/ROPS սերտիֆիկացված խցիկը ինտեգրված է բազմաֆունկցիոնալ էկրանին իրական ժամանակում սարքավորումների մոնիտորինգի և անսարքությունների վերացման համար:
Արագ ամրացվող շասսիի ունիվերսալ համակարգը թույլ է տալիս արագ փոփոխություններ կատարել՝ աջակցելով բազմաթիվ ֆունկցիոնալ կցորդներին՝ բազմազան գործողությունների համար: Արագ փոփոխվող մեխանիզմը թույլ է տալիս գործիքը փոխարինել հինգ րոպեի ընթացքում:
| Կարգավիճակ | Մանրամասներ |
|---|---|
| Կատարում | Բեռնատարողությունը՝ 5000 կգ Խցիկի չափսը՝ 3200 × 5500 × 1800 մմ Կուպե դռան լայնությունը՝ 1700 մմ Կուպե դռան համարը՝ 5 հատ Առավելագույն ձգողական ուժ՝ 110 կՆ |
| Չափս | Երկարությունը՝ 8250 ± 100 մ մԼայնությունը՝ 2200 ± 20 մմ Բարձրությունը՝ 2400 ± 50 մմ Գետնից մաքրություն՝ 250 ± 20 մմ Ղեկի անկյունը՝ ±40° Ներքին շրջադարձի շառավիղը՝ 4214 ± 100 մմ Արտաքին շրջադարձի շառավիղը՝ 6749 ± 100 մմ |
| Արագություն (մակարդակ, լրիվ բեռ) | 1-ին փոխանցում՝ 5 ± 1 կմ/ h2-րդ փոխանցում՝ 12 ± 1 կմ/ժ 3-րդ փոխանցում՝ 24 ± 1 կմ/ժ |
| Էներգահամակարգ | Շարժիչ՝ Cummins B5.9CS 4EFI, ջրով սառեցված, Tier 4, Euro Stage IV 129 կՎտ @ 2200 rpm, 760 N·m @ 1600 rpm |
| Արտանետման համակարգ | DOC կատալիտիկ մաքրիչ և խլացուցիչ |
| Վառելիքի տանկի հզորությունը | 140 Լ |
| Հիդրավլիկ համակարգ | Լիովին հիդրավլիկ շարժիչով ղեկ Լիցքավորման փական և սպասարկման արգելակային փական՝ MICO Արգելակային կուտակիչ՝ Leemin (Յուղի վերադարձի ֆիլտր) Հիդրավլիկ յուղի բաք՝ 200 լ |
| Էլեկտրական համակարգ | Էլեկտրական ռելե և անջատիչ՝ Schneide rController՝ Ֆինլանդիա EPEC Շարժիչի անսարքության հայտնաբերում |
| Տնակ (փակ) | FOPS/ROPS սերտիֆիկացում Սառը օդորակիչ Երկու դուռ տնակում Առաջ վարում Երեք կետանոց կոնտակտային մուտքի համակարգ՝ սրահ արագ մուտք գործելու համար Ցածր հաճախականության կախովի նստատեղ Ավտոմեքենայի պահուստային տեսախցիկ Երկու տեղանոց խցիկ Առջևի ապակու մաքրիչ սրահից դուրս |
| Անվտանգություն | Ջրամեկուսացման փարոս Դյուրակիր հակահրդեհային պաշտպանություն 1 × 6 կգ Ծխի ազդանշան Օդափոխման համակարգ |
| Ընտրանքներ | Հրդեհային պաշտպանության ավտոմատ համակարգ mAutomatic կենտրոնացված քսում |


FAMBITION-ը, որը գտնվում է Ցինդաո քաղաքի Laixi տնտեսական զարգացման գոտում, հայտնի և մասնագիտացված հանքարդյունաբերական սարքավորումներ արտադրող է:
Հեղինակային իրավունք © 2024 QINGDAO FAMBITION HEAVY MACHINERY CO.,LTD: Բոլոր իրավունքները պաշտպանված են: | Sitemap | Գաղտնիության քաղաքականություն