| Հասանելիության կարգավիճակ: | |
|---|---|
| Քանակը: | |
FUD03
FAMBITION
3500 լիտրանոց մեծ տարողությամբ բաք
Բացառիկ ծանրաբեռնվածություն՝ մեկ ուղևորության արդյունավետության զգալիորեն բարելավման համար:
Պրեմիում միջազգային բաղադրիչներ
Կառուցված է աշխարհահռչակ բրենդային մասերով՝ ակնառու հուսալիության և ամրության համար:
Կենտրոնական հոդակապ շասսի + Ամբողջական հիդրավլիկ ղեկ
Գերազանց մանևրելու ունակություն և գերազանց արտաճանապարհային կատարում բարդ ստորգետնյա միջավայրերում:
Ընդլայնված անվտանգության արգելակման համակարգ
Ամբողջովին փակ բազմասկավառակ թաց արգելակներ SAHR (Spring Applied Hydraulic Release) խափանումներից անվտանգ տեխնոլոգիայով՝ առավելագույն արգելակման հուսալիության համար:
Հզոր և էկոլոգիապես մաքուր շարժիչ
Cummins ցածր արտանետվող տուրբոշարժիչով շարժիչը, որը համապատասխանում է Չինաստանի IV փուլի արտանետումների ստանդարտներին. ուժեղ արդյունավետություն՝ շրջակա միջավայրի վրա ազդեցության նվազեցմամբ:
FOPS/ROPS սերտիֆիկացված տնակ
Բարձր ամրության պաշտպանիչ կառուցվածքը ապահովում է օպերատորի համապարփակ անվտանգությունը:
Խելացի բազմաֆունկցիոնալ էկրան
Իրական ժամանակի սարքավորումների մոնիտորինգ և ախտորոշիչ աջակցություն՝ ավելի արագ անսարքությունների վերացման և սպասարկման համար:
Ունիվերսալ արագ կցվող շասսի համակարգ
Մեկ մեքենա, բազմաթիվ գործառույթներ — անխափան աջակցում է կցորդների լայն տեսականի փոխադրման, բեռնման, մաքրման և այլնի համար:
5 րոպեանոց գործիքի արագ փոփոխություն
Ոլորտի առաջատար արագ փոփոխման մեխանիզմը թույլ է տալիս կցորդների փոխանակում կատարել ընդամենը 5 րոպեում՝ առավելագույնի հասցնելով շահագործման ժամանակը և արտադրողականությունը:
| Կարգավիճակ | Հստակեցում |
|---|---|
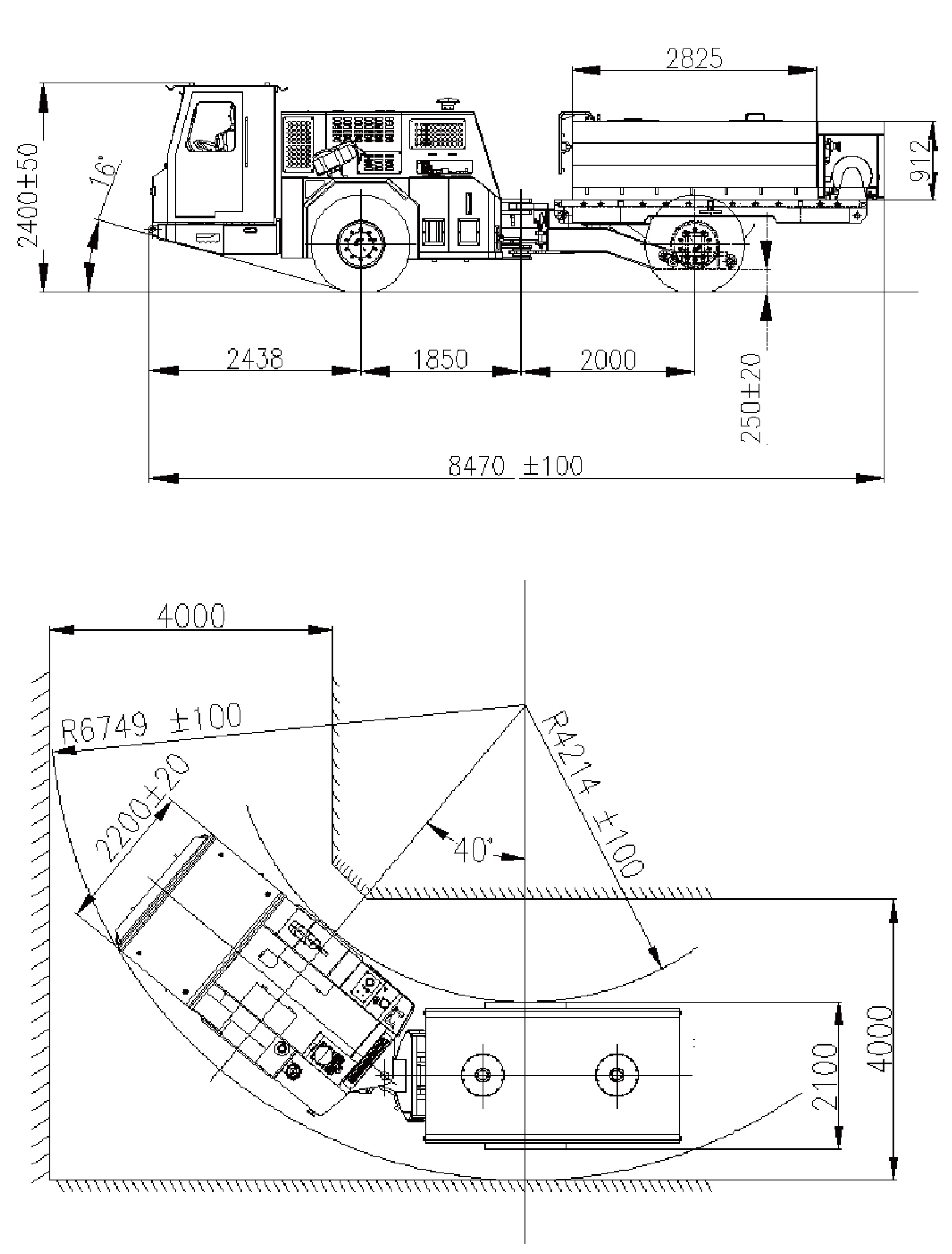
| Կատարում | Գնահատված տանկի ծավալը՝ 3,500 լ Բեռնատարողությունը՝ 3000 կգ Գործող քաշը՝ 12800 կգ Տանկի մեջ յուղ լցնելու արագությունը՝ 300 լ/րոպե Սարքավորման մեջ նավթի լցման արագությունը՝ 90 լ/րոպե Հեռադիտակային յուղի գուլպաներ՝ 5 մ |
| Շրջադարձային շառավիղ | Ղեկի անկյունը՝ ±40° Ներքին շրջադարձի շառավիղը՝ 4214 ±100 մմ Արտաքին շրջադարձի շառավիղը՝ 6749 ±100 մմ |
| Արագություն (մակարդակ, լրիվ բեռ) | 1-ին փոխանցում՝ 5.0 ±1 կմ/ժ 2-րդ փոխանցում՝ 12 ±1 կմ/ժ 3-րդ փոխանցում՝ 24 ±1 կմ/ժ |
| Էներգահամակարգ | Շարժիչ՝ Cummins B5.9CS4 EFI, ջրով սառեցված, Tier 4 / Euro Stage IV 129 կՎտ @ 2200 rpm, ոլորող մոմենտ՝ 760 kN @ 1600 rpm Արտանետման համակարգ՝ DOC կատալիտիկ մաքրիչ և խլացուցիչ Վառելիքի բաքի լիցքավորման հզորությունը՝ 140 լ Էլեկտրական փոխանցման հսկողություն ՍԱՀՐ Հետևի առանցքը ամրացված է, առջևի առանցքը տատանվում է ±7° Անվադողերի չափսը՝ 12.00 – 20 PR20 |
| Տնակ | FOPS/ROPS սերտիֆիկացում Սառը օդորակիչ Երկու դուռ Երեք կետ կոնտակտային մուտքի համակարգ Ցածր հաճախականության կախովի նստատեղ Ավտոմեքենայի պահուստային տեսախցիկ Երկու տեղանոց խցիկ Առաջ վարում Առջևի ապակու մաքրիչ սրահից դուրս |
| Չափս | Երկարությունը՝ 8,470 ± 100 մմ Լայնությունը՝ 2200 ±20 մմ Բարձրությունը՝ 2400 ± 50 մմ Գետնից մաքրություն՝ 250 ± 20 մմ |
| Հիդրավլիկ համակարգ | Լիովին հիդրավլիկ շարժիչով ղեկ Լիցքավորման փական և սպասարկման արգելակային փական՝ MICO Արգելակային կուտակիչ՝ Leemin Հիդրավլիկ յուղի բաք՝ 130 լ (Leemin նավթի վերադարձի ֆիլտրով) |
| Էլեկտրական համակարգ | Էլեկտրական ռելե և անջատիչ՝ Schneider Վերահսկիչ՝ Ֆինլանդիա EPEC Շարժիչի անսարքության հայտնաբերում |
| Ընտրանքներ | Հրդեհային պաշտպանության ավտոմատ համակարգ Ավտոմատ կենտրոնացված քսայուղային համակարգ Էլեկտրական քաշում հսկողություն 5 տոննա նավթի բաք |


3500 լիտրանոց մեծ տարողությամբ բաք
Բացառիկ ծանրաբեռնվածություն՝ մեկ ուղևորության արդյունավետության զգալիորեն բարելավման համար:
Պրեմիում միջազգային բաղադրիչներ
Կառուցված է աշխարհահռչակ բրենդային մասերով՝ ակնառու հուսալիության և ամրության համար:
Կենտրոնական հոդակապ շասսի + Ամբողջական հիդրավլիկ ղեկ
Գերազանց մանևրելու ունակություն և գերազանց արտաճանապարհային կատարում բարդ ստորգետնյա միջավայրերում:
Ընդլայնված անվտանգության արգելակման համակարգ
Ամբողջովին փակ բազմասկավառակ թաց արգելակներ SAHR (Spring Applied Hydraulic Release) խափանումներից անվտանգ տեխնոլոգիայով՝ առավելագույն արգելակման հուսալիության համար:
Հզոր և էկոլոգիապես մաքուր շարժիչ
Cummins ցածր արտանետվող տուրբոշարժիչով շարժիչը, որը համապատասխանում է Չինաստանի IV փուլի արտանետումների ստանդարտներին. ուժեղ արդյունավետություն՝ շրջակա միջավայրի վրա ազդեցության նվազեցմամբ:
FOPS/ROPS սերտիֆիկացված տնակ
Բարձր ամրության պաշտպանիչ կառուցվածքը ապահովում է օպերատորի համապարփակ անվտանգությունը:
Խելացի բազմաֆունկցիոնալ էկրան
Իրական ժամանակի սարքավորումների մոնիտորինգ և ախտորոշիչ աջակցություն՝ ավելի արագ անսարքությունների վերացման և սպասարկման համար:
Ունիվերսալ արագ կցվող շասսի համակարգ
Մեկ մեքենա, բազմաթիվ գործառույթներ — անխափան աջակցում է կցորդների լայն տեսականի փոխադրման, բեռնման, մաքրման և այլնի համար:
5 րոպեանոց գործիքի արագ փոփոխություն
Ոլորտի առաջատար արագ փոփոխման մեխանիզմը թույլ է տալիս կցորդների փոխանակում կատարել ընդամենը 5 րոպեում՝ առավելագույնի հասցնելով շահագործման ժամանակը և արտադրողականությունը:
| Կարգավիճակ | Հստակեցում |
|---|---|
| Կատարում | Գնահատված տանկի ծավալը՝ 3,500 լ Բեռնատարողությունը՝ 3000 կգ Գործող քաշը՝ 12800 կգ Տանկի մեջ յուղ լցնելու արագությունը՝ 300 լ/րոպե Սարքավորման մեջ նավթի լցման արագությունը՝ 90 լ/րոպե Հեռադիտակային յուղի գուլպաներ՝ 5 մ |
| Շրջադարձային շառավիղ | Ղեկի անկյունը՝ ±40° Ներքին շրջադարձի շառավիղը՝ 4214 ±100 մմ Արտաքին շրջադարձի շառավիղը՝ 6749 ±100 մմ |
| Արագություն (մակարդակ, լրիվ բեռ) | 1-ին փոխանցում՝ 5.0 ±1 կմ/ժ 2-րդ փոխանցում՝ 12 ±1 կմ/ժ 3-րդ փոխանցում՝ 24 ±1 կմ/ժ |
| Էներգահամակարգ | Շարժիչ՝ Cummins B5.9CS4 EFI, ջրով սառեցված, Tier 4 / Euro Stage IV 129 կՎտ @ 2200 rpm, ոլորող մոմենտ՝ 760 kN @ 1600 rpm Արտանետման համակարգ՝ DOC կատալիտիկ մաքրիչ և խլացուցիչ Վառելիքի բաքի լիցքավորման հզորությունը՝ 140 լ Էլեկտրական փոխանցման հսկողություն ՍԱՀՐ Հետևի առանցքը ամրացված է, առջևի առանցքը տատանվում է ±7° Անվադողերի չափսը՝ 12.00 – 20 PR20 |
| Տնակ | FOPS/ROPS սերտիֆիկացում Սառը օդորակիչ Երկու դուռ Երեք կետ կոնտակտային մուտքի համակարգ Ցածր հաճախականության կախովի նստատեղ Ավտոմեքենայի պահուստային տեսախցիկ Երկու տեղանոց խցիկ Առաջ վարում Առջևի ապակու մաքրիչ սրահից դուրս |
| Չափս | Երկարությունը՝ 8,470 ± 100 մմ Լայնությունը՝ 2200 ±20 մմ Բարձրությունը՝ 2400 ± 50 մմ Գետնից մաքրություն՝ 250 ± 20 մմ |
| Հիդրավլիկ համակարգ | Լիովին հիդրավլիկ շարժիչով ղեկ Լիցքավորման փական և սպասարկման արգելակային փական՝ MICO Արգելակային կուտակիչ՝ Leemin Հիդրավլիկ յուղի բաք՝ 130 լ (Leemin նավթի վերադարձի ֆիլտրով) |
| Էլեկտրական համակարգ | Էլեկտրական ռելե և անջատիչ՝ Schneider Վերահսկիչ՝ Ֆինլանդիա EPEC Շարժիչի անսարքության հայտնաբերում |
| Ընտրանքներ | Հրդեհային պաշտպանության ավտոմատ համակարգ Ավտոմատ կենտրոնացված քսայուղային համակարգ Էլեկտրական քաշում հսկողություն 5 տոննա նավթի բաք |


FAMBITION-ը, որը գտնվում է Ցինդաո քաղաքի Laixi տնտեսական զարգացման գոտում, հայտնի և մասնագիտացված հանքարդյունաբերական սարքավորումներ արտադրող է:
Հեղինակային իրավունք © 2024 QINGDAO FAMBITION HEAVY MACHINERY CO.,LTD: Բոլոր իրավունքները պաշտպանված են: | Sitemap | Գաղտնիության քաղաքականություն